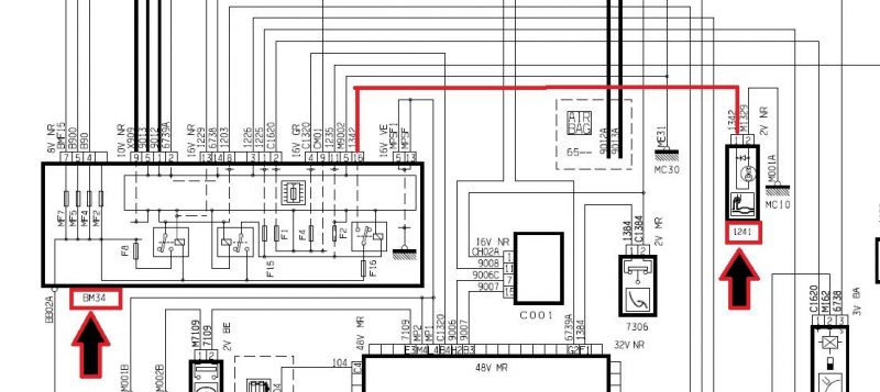
Бес Опубликовано 26 сентября, 2019 Поделиться Опубликовано 26 сентября, 2019 46 минут назад, 1976Алексей сказал: VF7DCRFNC76245849 1241 : Насос системы подачи воздуха список компонентов электросхем.pdf электронный впрыск.pdf На сколько вижу на блок BM34 приходит провод от него . назначение предохранителей BM34.pdf Природа мудра, и Всевышнего глаз Видит каждый наш шаг на тернистой дороге Наступает момент, когда каждый из нас У последней черты вспоминает о Боге... Ссылка на комментарий
1976Алексей Опубликовано 26 сентября, 2019 Поделиться Опубликовано 26 сентября, 2019 Спасибо. Похоже что реле находится в салоне, на блоке предохранителей. Ссылка на комментарий
Бес Опубликовано 26 сентября, 2019 Поделиться Опубликовано 26 сентября, 2019 4 минуты назад, 1976Алексей сказал: Похоже что реле находится в салоне, на блоке предохранителей. Ты реально не шаришь в схемах..... Распечатай эти файлики и езжай к электрику. Природа мудра, и Всевышнего глаз Видит каждый наш шаг на тернистой дороге Наступает момент, когда каждый из нас У последней черты вспоминает о Боге... Ссылка на комментарий
1976Алексей Опубликовано 26 сентября, 2019 Поделиться Опубликовано 26 сентября, 2019 Был у одного... Друг, ты разбираешься в схемах, подскажи-где находится эта релюха? Ссылка на комментарий
Бес Опубликовано 26 сентября, 2019 Поделиться Опубликовано 26 сентября, 2019 Не правильно немного сказал. На 16-й пин 16V GR с него прямиком на реле R13, а там предохранитель F16 Нет, я ничего не понимаю в схемах. Блок под капотом. Возле АКБ. Там найди реле R13. Спойлер Природа мудра, и Всевышнего глаз Видит каждый наш шаг на тернистой дороге Наступает момент, когда каждый из нас У последней черты вспоминает о Боге... Ссылка на комментарий
1976Алексей Опубликовано 26 сентября, 2019 Поделиться Опубликовано 26 сентября, 2019 Ок Спасибо Ссылка на комментарий
Пыжовод Опубликовано 26 сентября, 2019 Поделиться Опубликовано 26 сентября, 2019 Доброго времени суток! VF3GCRHYB96193157 Нужна схема подключения ДХО, часов и многофункционального дисплея. Спасибо! Ссылка на комментарий
Бес Опубликовано 26 сентября, 2019 Поделиться Опубликовано 26 сентября, 2019 4 минуты назад, Пыжовод сказал: VF3GCRHYB96193157 У меня нет схем на Пежо... Природа мудра, и Всевышнего глаз Видит каждый наш шаг на тернистой дороге Наступает момент, когда каждый из нас У последней черты вспоминает о Боге... Ссылка на комментарий
Sabros39 Опубликовано 27 сентября, 2019 Поделиться Опубликовано 27 сентября, 2019 Добрый день! Нужна схема динамической стабилизации VF7DCRHZE76500030, OPR 09964 CJ 0187, выскочила ошибка ABS. Спасибо! Ссылка на комментарий
Бес Опубликовано 27 сентября, 2019 Поделиться Опубликовано 27 сентября, 2019 16 минут назад, Sabros39 сказал: VF7DCRHZE76500030 динамическая стабилизация.pdf Природа мудра, и Всевышнего глаз Видит каждый наш шаг на тернистой дороге Наступает момент, когда каждый из нас У последней черты вспоминает о Боге... Ссылка на комментарий
Sabros39 Опубликовано 27 сентября, 2019 Поделиться Опубликовано 27 сентября, 2019 Спасибо большое! Ссылка на комментарий
ВПН Опубликовано 28 сентября, 2019 Поделиться Опубликовано 28 сентября, 2019 Здравствуйте! Citroen Berlingo M49 1.4 2002 г. VIN: VF7MFKFWB65875548 Нужна схема Охлаждения двигателя (Вентиляторов радиатора). Спасибо. Нормальность - понятие оооочень относительное. © Ссылка на комментарий
Бес Опубликовано 28 сентября, 2019 Поделиться Опубликовано 28 сентября, 2019 2 часа назад, ВПН сказал: VF7MFKFWB65875548 Привет. Если не ошибаюсь блок управления Сагем S2000. Там два варианта: наличие кондиционера и общие варианты. Лениво было смотреть что у тебя в комплектации ))) Так что две схемы, первая - кондиционер, вторая - общие варианты. Смотри какая твоя охлаждение двигателя 1.pdf охлаждение двигателя 2.pdf ВПН 1 Природа мудра, и Всевышнего глаз Видит каждый наш шаг на тернистой дороге Наступает момент, когда каждый из нас У последней черты вспоминает о Боге... Ссылка на комментарий
ВПН Опубликовано 28 сентября, 2019 Поделиться Опубликовано 28 сентября, 2019 У меня в комплектации "колхоз". Лексия выдает Сагем S2000. Кондиционер присутствует. Можно немного обнаглеть и попросить схему датчика температуры .Пожалуйста.. Нормальность - понятие оооочень относительное. © Ссылка на комментарий
Бес Опубликовано 28 сентября, 2019 Поделиться Опубликовано 28 сентября, 2019 1 час назад, ВПН сказал: Можно немного обнаглеть и попросить схему датчика температуры .Пожалуйста.. Температуры чего? Природа мудра, и Всевышнего глаз Видит каждый наш шаг на тернистой дороге Наступает момент, когда каждый из нас У последней черты вспоминает о Боге... Ссылка на комментарий
ВПН Опубликовано 29 сентября, 2019 Поделиться Опубликовано 29 сентября, 2019 Датчика (датчиков) температуры двигателя. У меня на датчике, который на термостате, на фишке провода обрезаны, а под термостатом стоит еще датчик. Предыдущий хозяин "колхозил" .Нужно восстанавливать. Спасибо. Нормальность - понятие оооочень относительное. © Ссылка на комментарий
Бес Опубликовано 29 сентября, 2019 Поделиться Опубликовано 29 сентября, 2019 17 часов назад, Бес сказал: VF7MFKFWB65875548 2 часа назад, ВПН сказал: Датчика (датчиков) температуры двигателя. 1220 : Датчик температуры охлаждающей жидкости двигателя Если я не ошибся при выборе схем ))) Схемы две. Одна именно на S2000 вторая на Сагем. S2000 тоже Сагем, но система почему-то их разделяет. Посмотри обе. калькулятор SAGEM калькулятор S2000 Но дальше вроде все верно: кондиционер система очистки L4 - СИСТЕМА СНИЖЕНИЯ ТОКСИЧНОСТИ L4 EURO 3 калькулятор SAGEM.pdf калькулятор S2000.pdf ВПН 1 Природа мудра, и Всевышнего глаз Видит каждый наш шаг на тернистой дороге Наступает момент, когда каждый из нас У последней черты вспоминает о Боге... Ссылка на комментарий
st.ravil Опубликовано 2 октября, 2019 Поделиться Опубликовано 2 октября, 2019 Добрый вечер! VF7LCNFUF74545714 "Пропал" стартер с ключа зажигания. Прошу, помогите со схемой системы пуска двигателя? Ссылка на комментарий
Бес Опубликовано 2 октября, 2019 Поделиться Опубликовано 2 октября, 2019 2 часа назад, st.ravil сказал: VF7LCNFUF74545714 список компонентов электросхем.pdf электронный впрыск.pdf Запуск двигателя.pdf охлаждение двигателя.pdf st.ravil 1 Природа мудра, и Всевышнего глаз Видит каждый наш шаг на тернистой дороге Наступает момент, когда каждый из нас У последней черты вспоминает о Боге... Ссылка на комментарий
Arhangelivan Опубликовано 3 октября, 2019 Поделиться Опубликовано 3 октября, 2019 Добрый вечер. Нужно СХЕМА ЗАДНИХ ГОБОРИТНЫХ ОГНЕЙ и Головного света Citroen Берлинго VF7MCWJZF65572120 Ссылка на комментарий
Бес Опубликовано 3 октября, 2019 Поделиться Опубликовано 3 октября, 2019 11 минут назад, Arhangelivan сказал: СХЕМА ЗАДНИХ ГОБОРИТНЫХ ОГНЕЙ Где ж ты такое вычитал.... Два варианта. Какой-то твой. 1- дверь багажного отделения 2 - absence of this/these variant(s) Габаритные фонари 2.pdf Габаритные фонари 1.pdf Arhangelivan 1 Природа мудра, и Всевышнего глаз Видит каждый наш шаг на тернистой дороге Наступает момент, когда каждый из нас У последней черты вспоминает о Боге... Ссылка на комментарий
AlexLom Опубликовано 6 октября, 2019 Поделиться Опубликовано 6 октября, 2019 Приветствую. Space Tourer Z8TVEAHXVJM006467 Можете помочь со схемами на Webasto, в том числе приемника пульта доп. отопителя (где он стоит в машине)? Спасибо. Ссылка на комментарий
Бес Опубликовано 6 октября, 2019 Поделиться Опубликовано 6 октября, 2019 8 минут назад, AlexLom сказал: Z8TVEAHXVJM006467 Должно этого хватить... общая схема контактов массы.pdf Охлаждение 1.pdf Охлаждение 2.pdf Охлаждение 3.pdf Охлаждение 4.pdf Охлаждение 5.pdf Охлаждение 6.pdf Охлаждение 7.pdf Охлаждение 8.pdf Охлаждение 9.pdf Охлаждение 10.pdf Охлаждение 11.pdf список компонентов электросхем.pdf Природа мудра, и Всевышнего глаз Видит каждый наш шаг на тернистой дороге Наступает момент, когда каждый из нас У последней черты вспоминает о Боге... Ссылка на комментарий
Argentum Опубликовано 6 октября, 2019 Поделиться Опубликовано 6 октября, 2019 Доброй ночи. Решил на свой Берлинго 1.4 2007 года установить фаркоп. С самим фаркопом проблем нет, а вот по проводке есть вопросы. Розетку фаркопа буду подключать через релюшки, но вот не знаю где правильнее врезаться в провода!? Есть ли где-то в задней части авто разъемы, или нужно резать жгуты? VIN: VF7GJKFWC93486722 Ссылка на комментарий
AlexLom Опубликовано 6 октября, 2019 Поделиться Опубликовано 6 октября, 2019 4 часа назад, Бес сказал: Должно этого хватить... Большое спасибо. Единственно не понял: доп. помпа не от котла что ли подключена? Почему то ее на схеме нет? Ссылка на комментарий
Рекомендуемые сообщения